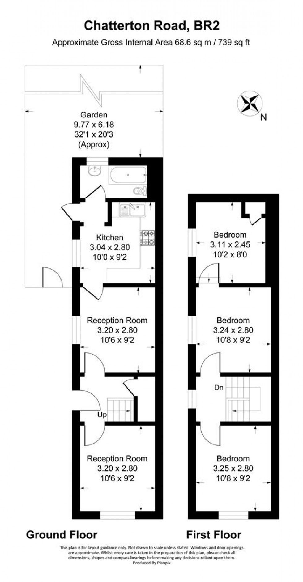
***Guide price £425,000-£450,000*** This truly charming three bedroom cottage is ideally situated in the highly sought-after Chatterton Village. Offering a rare opportunity to acquire a unique home in a desirable location, this delightful property is full of character and has fantastic potential to extend (subject to the usual planning consents), thanks to its generous front, side, and rear gardens. The accommodation is well laid out and full of natural light. Upon entering, you are welcomed by an inviting hallway featuring a bright and welcoming hallway, cosy living room offers the perfect space to relax, while the separate dining room to the rear flows seamlessly into a modern, newly fitted kitchen ideal for both everyday living and entertaining. A stylish, contemporary bathroom completes the ground floor. Upstairs, the first-floor landing is bright and airy, leading to three well-proportioned bedrooms, each offering its own charm and character, along with pleasant views over the surrounding area. The layout offers flexibility for growing families, those looking to work from home or buyers seeking a property with scope to enhance further. Externally, the home benefits from a well-sized patio to the side and rear, ideal for outdoor dining and summer gatherings. The rear garden is mostly laid to lawn providing a lovely, private space to enjoy. With plenty of room to grow, the outdoor space is a standout feature and adds to the long-term appeal of the property. Located within a friendly and community-focused area, Chatterton Village is known for its charming streets, independent shops, cafes and excellent transport links. Popular schools and green spaces are also within easy reach, making this an ideal choice for families and professionals alike. This is a wonderful opportunity to secure a characterful home with bags of potential. EPC: D
Freehold COUNCIL TAX -D Construction - Traditional Mains Services - Heating System - Broadband – Mobile coverage - Restrictive