CHAIN FREE !
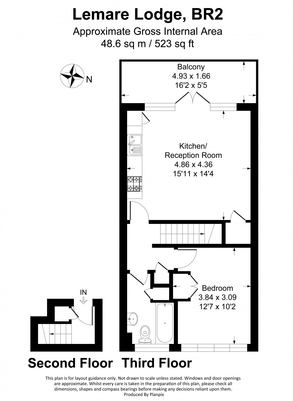
Nestled within the highly desirable Fairacres development, this impeccably refurbished one bedroom split level second floor apartment offers a perfect blend of contemporary sophistication and refined living — just 0.84 miles from Bromley South mainline station. Spanning approximately 523 sq. ft., the apartment has been thoughtfully designed to maximise light and space throughout. The welcoming entrance hall leads to an impressive open-plan kitchen and lounge area, featuring brand new, high specification appliances and bespoke finishes. Expansive full width patio doors open onto a large private balcony, creating a seamless connection between indoor and outdoor living — ideal for al fresco dining or evening relaxation. The property further comprises a generously sized double bedroom and a luxurious modern bathroom suite, both presented with exceptional attention to detail and contemporary styling. Perfect as a first-time purchase, or investment, this property is within easy reach of Bromley’s vibrant town centre, boutique shops, fine dining and excellent transport connections into Central London. EPC: C
Leasehold - 87 years
Service Charge - £2617, billed quarterly
Ground Rent - £15
COUNCIL TAX - C
Construction - Concrete construction
Mains Services - Yes
Heating System - Gas radiators
Broadband – Ready to be connected
Mobile coverage - Good
Restrictive covenants – No