***OPEN DAY 8TH OF NOVEMBER***
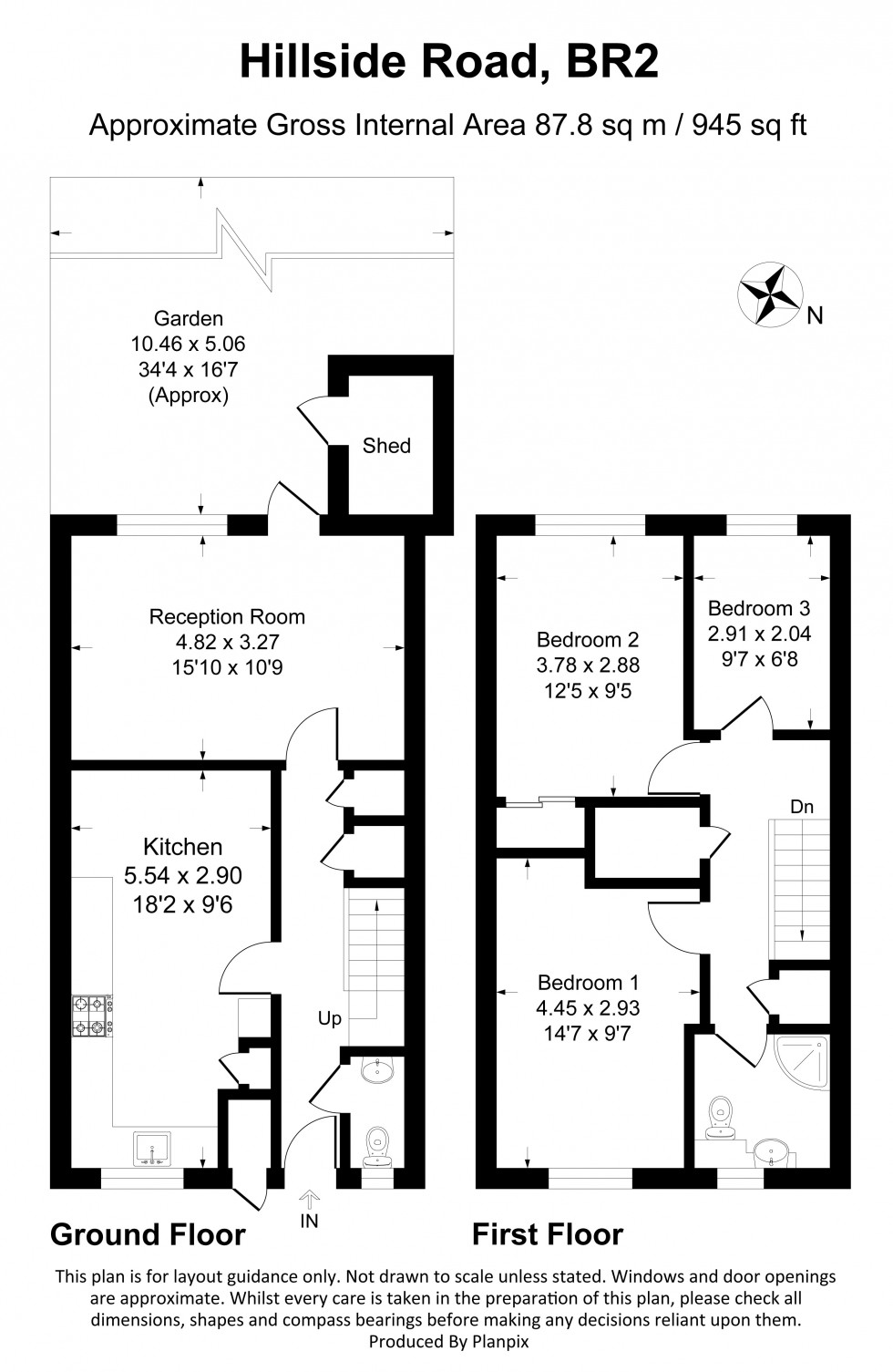
Situated in a sought-after and highly convenient location, this three bedroom, two reception room, two bathroom property offers spacious and well-balanced accommodation, ideal for families and professionals alike.
Upon entering the property, you’ll find a downstairs W/C to your right and a generously sized kitchen/dining area to your left. The home also benefits from an additional separate reception room, perfect for entertaining or use as a second lounge or office space, which leads out to a low-maintenance garden.
Upstairs, the property boasts three well-proportioned bedrooms and a modern family bathroom, offering practical and comfortable living.
This home is ideally located just a short distance from both Shortlands and Bromley South stations, providing excellent transport links into Central London. Numerous regular bus routes also connect the surrounding area.
Bromley town centre is close by and features a wide range of popular shops, bars, restaurants, cafés, and leisure facilities, including a cinema. The area is also well-served by highly regarded schools, including Harris Primary Academy, Bishop Challoner School, Valley Primary School, and the outstanding-rated Highfield School.
EPC: C
Freehold
COUNCIL TAX - D
Construction - Traditional
Mains Services - Yes
Heating System - Gas radiators
Broadband – Openreach
Mobile coverage - Three
Restrictive covenants – No