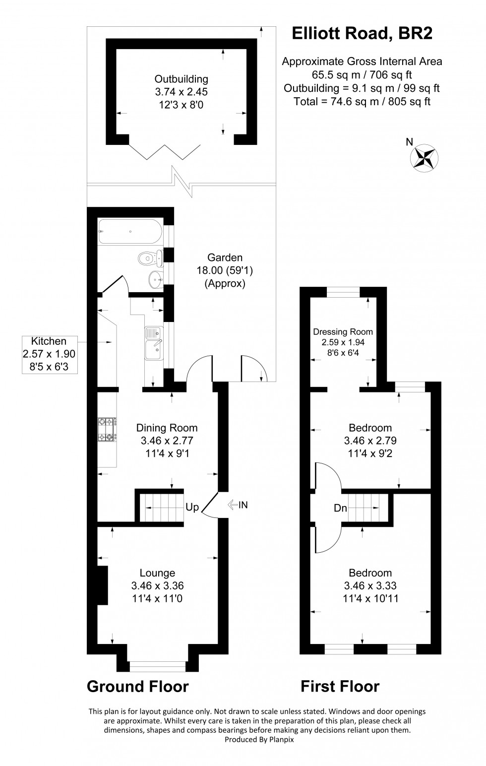
***GUIDE PRICE £475,000 - £485,000*** Sinclair Hammelton are delighted to present this charming two bedroom semi-detached house, ideally located being under a mile from both Bickley and Bromley South stations. Situated just a stone’s throw from the sought-after Raglan Primary School and the popular Chatterton Village, the home is perfectly positioned for easy access to local shops, pubs and restaurants. The ground floor offers bright and welcoming accommodation, including a spacious living room with a beautiful bay window, an open-plan kitchen and dining area, a utility room and a family bathroom. Upstairs, you’ll find two generous double bedrooms along with a versatile additional room, ideal for use as a home office, dressing room, or nursery. Externally, the property boasts a sizeable rear garden featuring a summer house currently being used as an office space. Viewing is highly recommended.
EPC: D
Freehold
COUNCIL TAX - D
Construction - Traditional
Mains Services - Yes
Heating System - Gas radiators
Broadband – Ultrafast 1000Mbps
Mobile coverage - Good
Restrictive covenants – Yes, not allowed to keep chickens