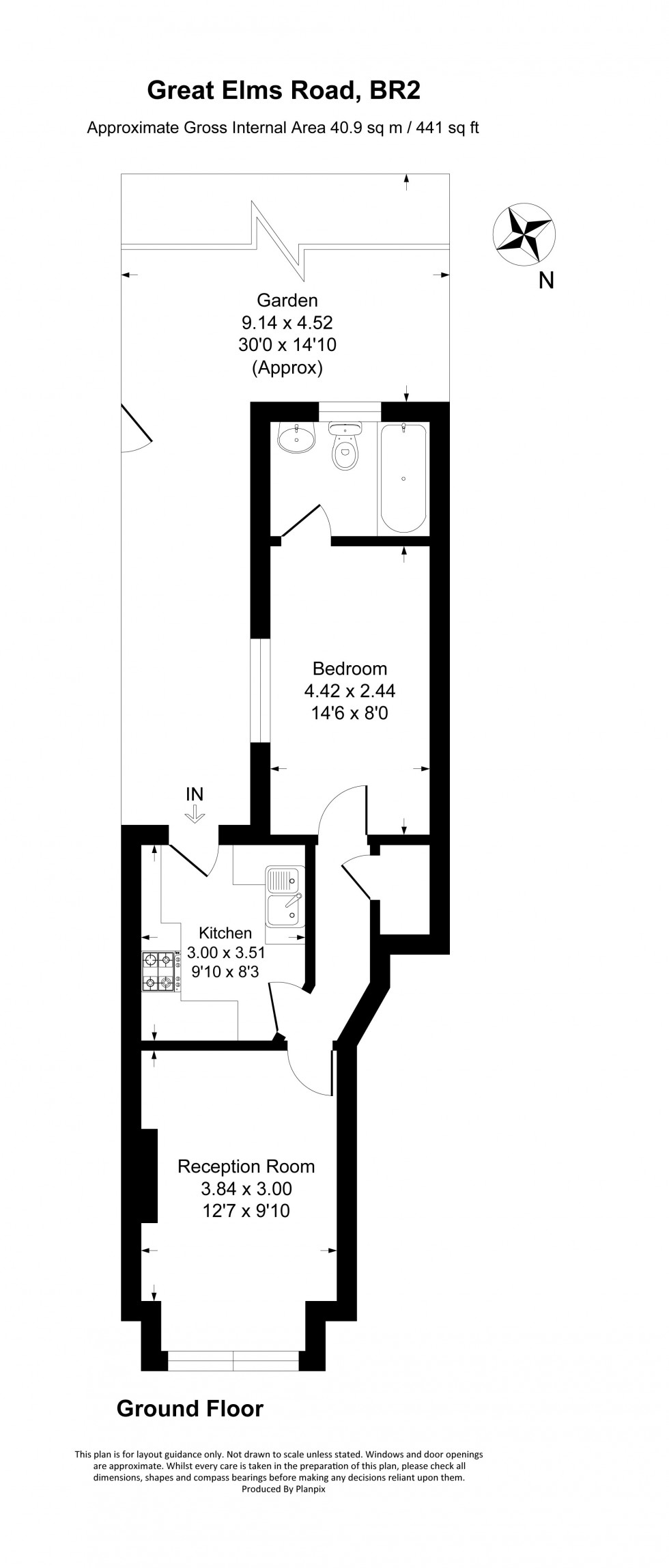
Rarely available is this ground floor garden flat with share of freehold situated on a desirable road just 0.6 miles from Bromley South Station. Living accommodation comprises a private entrance at the side of the property entering a spacious kitchen leading to a bright living room with decorative coving, bedroom and bathroom. This property has direct access to a secure private garden mostly laid to lawn with patio seating area.
EPC: D
Lease length: Share of freehold 102 years
Ground rent: £0
Service charge : As and When needed
COUNCIL TAX - C
Construction - Brick
Mains Services - Gas and electric
Heating System - Gas
Broadband – yes
Mobile coverage - good
Restrictive covenants – no
Ground floor garden flat
Desirable road just 0.6 miles from station
Side entrance, spacious kitchen, bright living room