***GUIDE PRICE £675,000 TO £700,000***
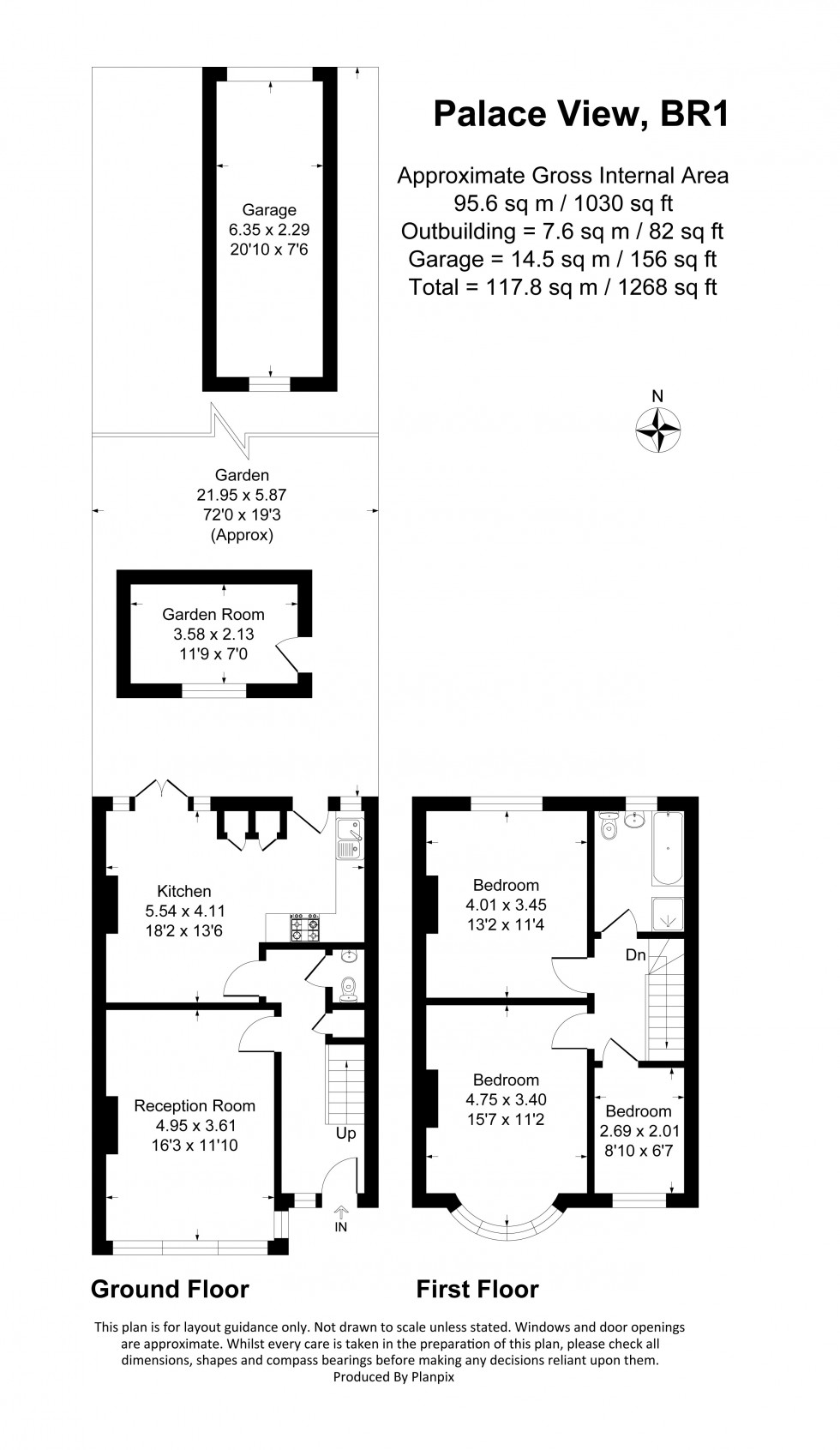
Rarely available is this beautifully presented 1930's three bedroom terrace house situated on the popular Palace Estate. The property is located under 0.5 miles to Bromley South Station with fast train line to London Victoria. The property is modern throughout after being tastefully refurbished by the current owners. Living accommodation comprises a stain glass front door which allows natural light into a spacious hallway leading to a well-proportioned reception room and W/C. There is an open plan kitchen/diner with doors leading onto a private garden. To the first floor are three bedrooms and a four-piece family bathroom. Further benefits include driveway with off street parking for two cars, garage to the rear as well as an outbuilding with electricity which can be used as an office. The property also has potential to extend into the loft. EPC: D
COUNCIL TAX - E
Construction - Traditional
Mains Services -
Heating System -
Broadband –
Mobile coverage -
Restrictive covenants –
1930's three bedroom terrace house
Chain Free
Driveway with off street parking for 2 cars
Newly renovated throughout
Garage
Potential to extend into the loft
New windows throughout with 10 years Fensa warranty
New Flooring throughout
Newly fitted bathrooms
Integrated kitchen appliances with up to 2 + 10 years warranty