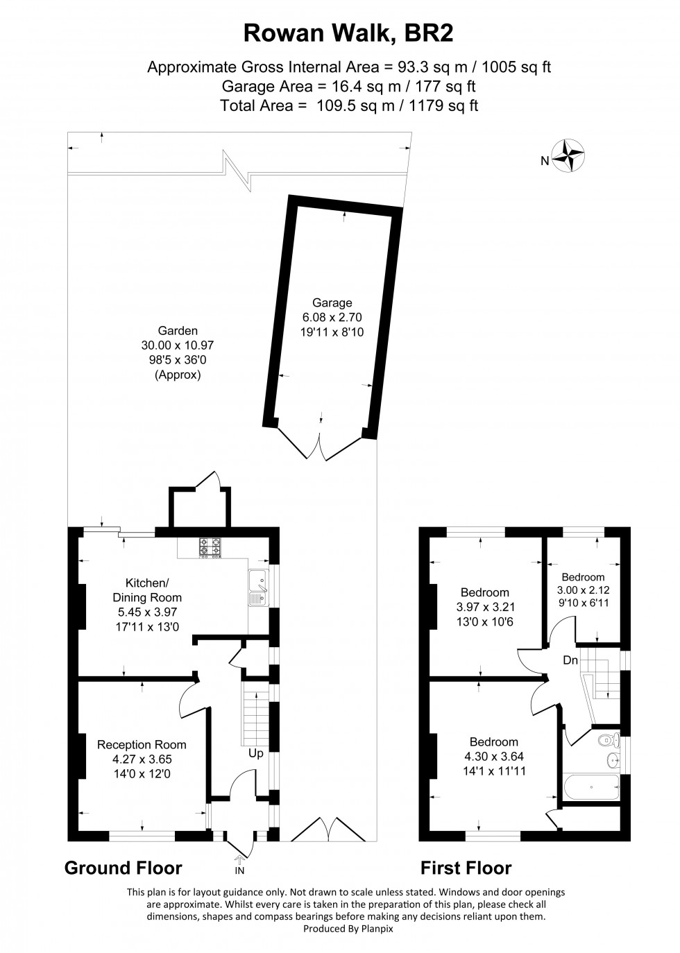
We are delighted to offer to the market for the first time in over 60 years, this well presented and chain free, three bedroom semi-detached house located in ever popular Rowan Walk. \
Rowan Walk sits close to Beverley Park and local schools including Darrick Wood juniors and seniors, and Ravenswood secondary school. The property is also close to Locksbottom parade, PRU hospital and has easy access to the M25.
The property benefits from an entrance hallway opening to a front reception, dining room with sliding doors to the garden to rear, and modern white kitchen.
To the first floor there are three bedrooms, two of which are doubles plus a single bedroom and contemporary bathroom.
To the rear is a fantastic garden and a further benefits include a detached garage.
The property offers huge scope for extensions and developement subject to the usual planning permissions.
Viewing highly recommended.
Chain free, three bedroom semi detached
Excellent location
Potential to extend STPP
Off street parking and garage
Modern kitchen and bathroom
Close to Locksbottom parade
Excellent transport links to Bromley, Orpington and London