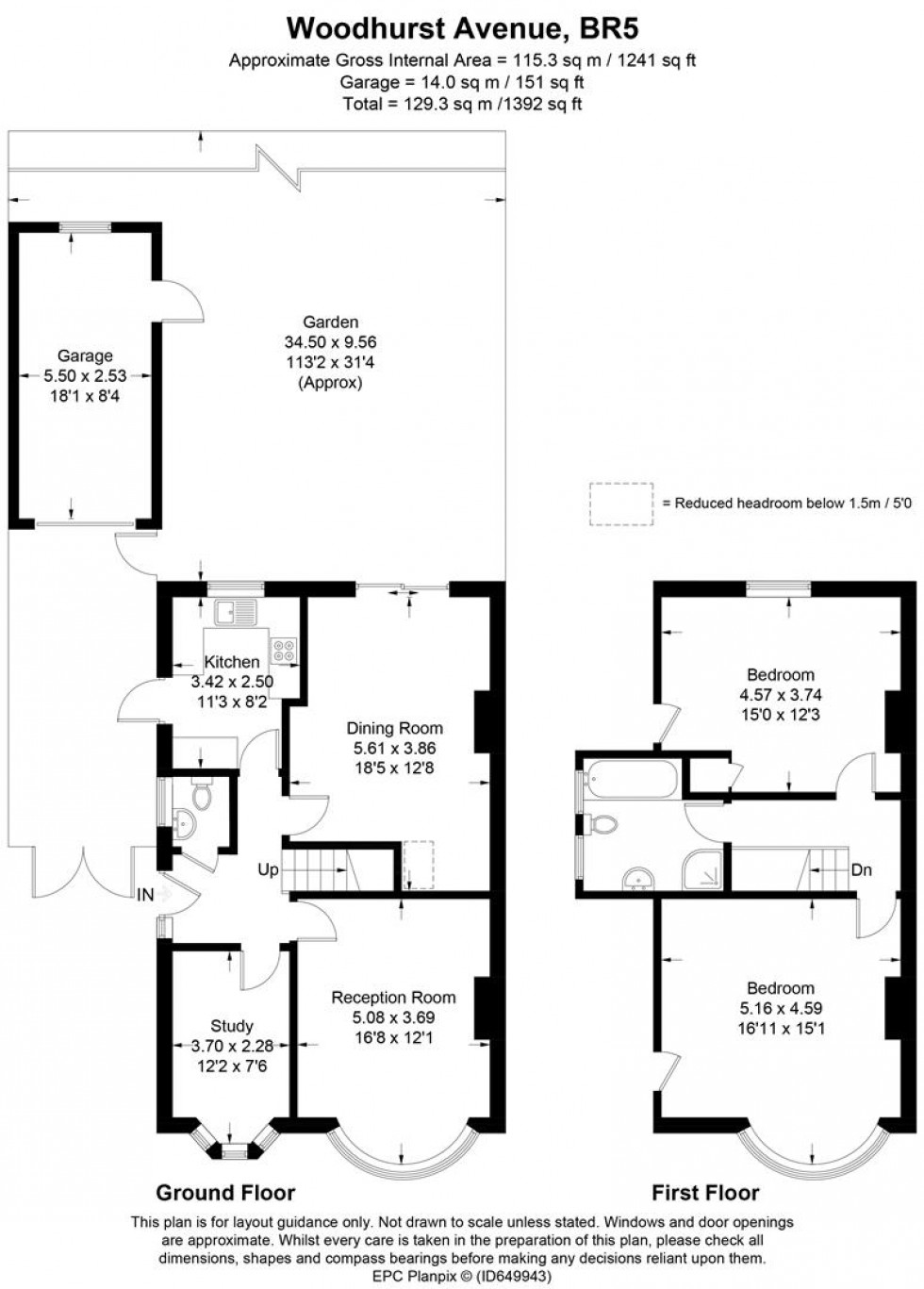
Situated on one of Petts Wood's most popular and convenient residential roads is this extremely well presented and VERSATILE three bedroom SEMI DETACHED chalet style house which is oozing potential, where an internal viewing comes highly recommended. Internally the bright and spacious accommodation comprises of entrance hall, MAIN RECEPTION ROOM, dining room, fitted kitchen, downstairs and a downstairs bedroom. Upstairs you will find two BEDROOMS with the largest measuring 16'11 x 15'1 and family bathroom.
Outside to the rear you will find a glorious LARGER than average GARDEN which is laid to lawn and patio area, to the front you will find extensive off street parking and access to the DETACHED GARAGE and side access. Woodhurst avenue provides a flat walk into Petts wood where you will find a vast array of shopping facilities, mainline station which serves Central London in approximately 16 minutes as well as DESIRABLE SCHOOLING including Crofton Primary & Juniors as well as St James Primary.
Three Bedroom Semi Detached Family Home
Within 0.2 Of A Mile From Petts Wood Mainline Station