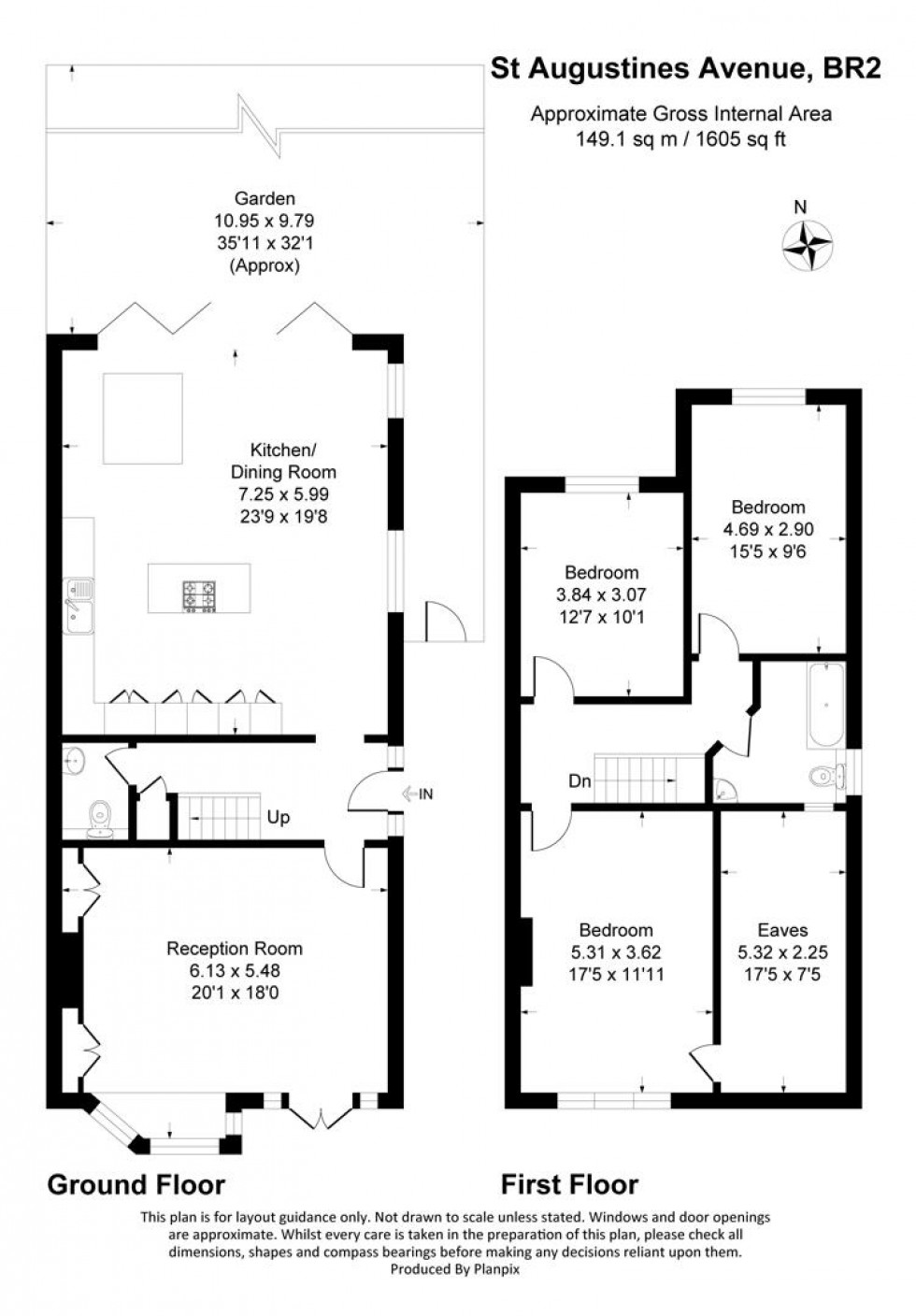
Sinclair Hamilton are proud to bring to the market this truly exceptional three double-bedroom family home, tucked away in a quiet and sought-after cul-de-sac. Conveniently located close to highly desirable schools and offering excellent access to public transport links, including bus routes and Bickley, Petts Wood and Bromley South stations, the property is ideally positioned for families and commuters alike. The property has been extended and modernised throughout by the current owners, offering stylish and contemporary open-plan family living. The accommodation comprises an entrance hallway, W/C, and hand-crafted roller doors opening into a breathtaking open-plan kitchen, dining and living space. The kitchen features integrated appliances, a central island, perfect for entertaining and open plan living and dining area looking into the private garden. To the front of the property is a spacious living room complete with a log burner, ideal for cosy winter evenings. To the first floor, the property offers a principal bedroom with eaves storage that can be used as a wardrobe or additional storage room, two further well-proportioned double bedrooms, and a modern family bathroom. There is also a generously sized loft, offering potential for further extension subject to the usual consents. Externally, the property benefits from a private, beautifully and professionally landscaped rear garden with two distinct seating areas, ideal for outdoor dining and relaxation. To the front, there is off-street parking. Early viewing is highly recommended to fully appreciate everything this outstanding home has to offer.