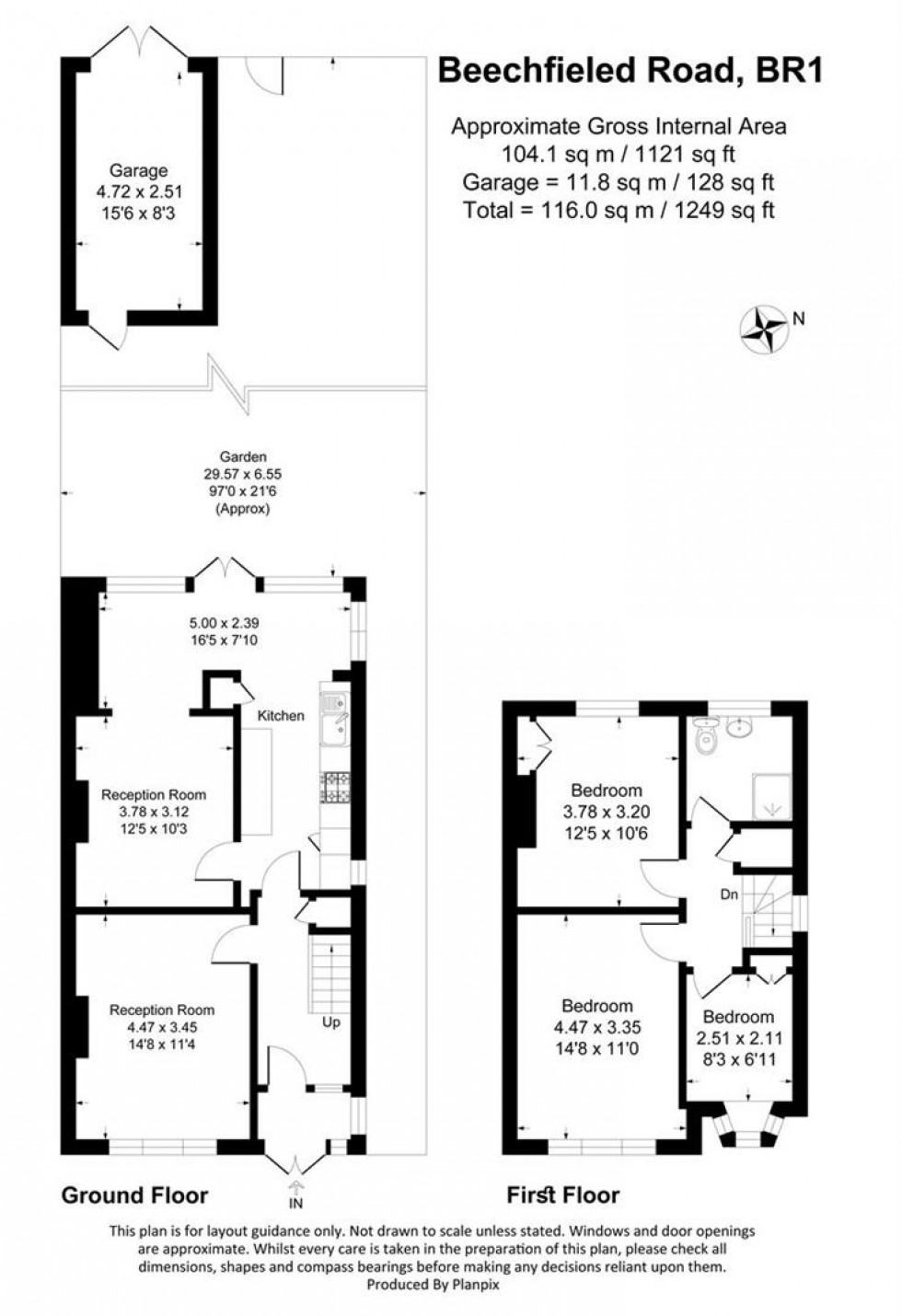
***GUIDE PRICE £550,000 - £600,000*** Sinclair Hammelton are proud to bring to the market this three bedroom end of terrace house situated on a quiet residential road close to local amenities, bus routes and Bickley and Bromley South train stations. Living accommodation comprises entrance hallway to a sizeable through lounge, kitchen, dining room and conservatory. To the first floor there are two double bedrooms, a single room, and a family bathroom. Externally there is a generous private garden and garage to the rear. Viewing highly recommended. EPC: D
Freehold COUNCIL TAX - E Construction - Brick Mains Services - Gas and electric Heating System - Gas Broadband – Yes Mobile coverage - Good Restrictive covenants – Unknown