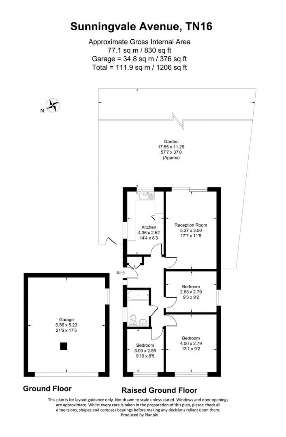
A beautifully presented detached bungalow set on this mature plot, with a generous rear garden, off street parking and a double garage, with the possibility of converting to a gym/home office etc ( subject to consent). The property benefits from double glazing, gas central heating, sunny east facing patio and lawned garden and a generous driveway. Biggin Hill is popular with people looking to move out of London for a quieter life, while still enjoying easy access to the capital. There are a number of 'outstanding' and 'good' rated schools in the area, including Fairchildes Primary, Downe Primary and Charles Darwin School. EPC: D
Freehold COUNCIL TAX - D Construction - Traditional Mains Services - Gas, Electricity, Sewerage and metered Water supply Heating System - Gas radiators Broadband – Sky Fibre Optic Ultrafast Broadband Mobile coverage - Good outdoors and indoors Restrictive covenants – No