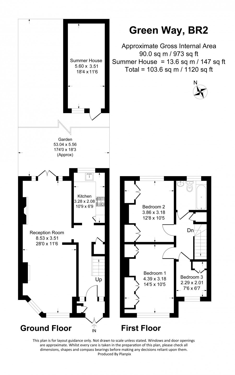
Sinclair Hammelton are proud to present this beautifully modernised three bedroom terraced house. The property has been tastefully updated throughout by the current owners and is conveniently located close to local shops, highly regarded schools and excellent transport links, including local bus routes and Bickley train station, which is just 0.8 miles away. The accommodation comprises a welcoming porch leading into an entrance hallway, which opens into a bright and spacious open-plan living and dining area with feature fireplace and French doors providing direct access to the garden. The ground floor also features a modern, fully fitted kitchen with ample storage and contemporary finishes. Upstairs, there are two generous double bedrooms, a well-proportioned single bedroom and a family bathroom. Externally, the property boasts a stunning 174ft rear garden, complete with a summer house and a patio seating area, perfect for outdoor entertaining. Additional benefits include off-street parking, gas central heating and double glazing throughout. Early viewing is highly recommended to fully appreciate all this home has to offer. EPC: C
Freehold
COUNCIL TAX - D
Construction - Traditional
Mains Services - Yes and metered water supply
Heating System - Gas radiators
Broadband – 1800
Mobile coverage - Good
Restrictive covenants – No