Presented to the market CHAIN FREE this beautiful two bedroom semi detached bungalow on a quiet residential street a stones throw from Petts Wood high street.
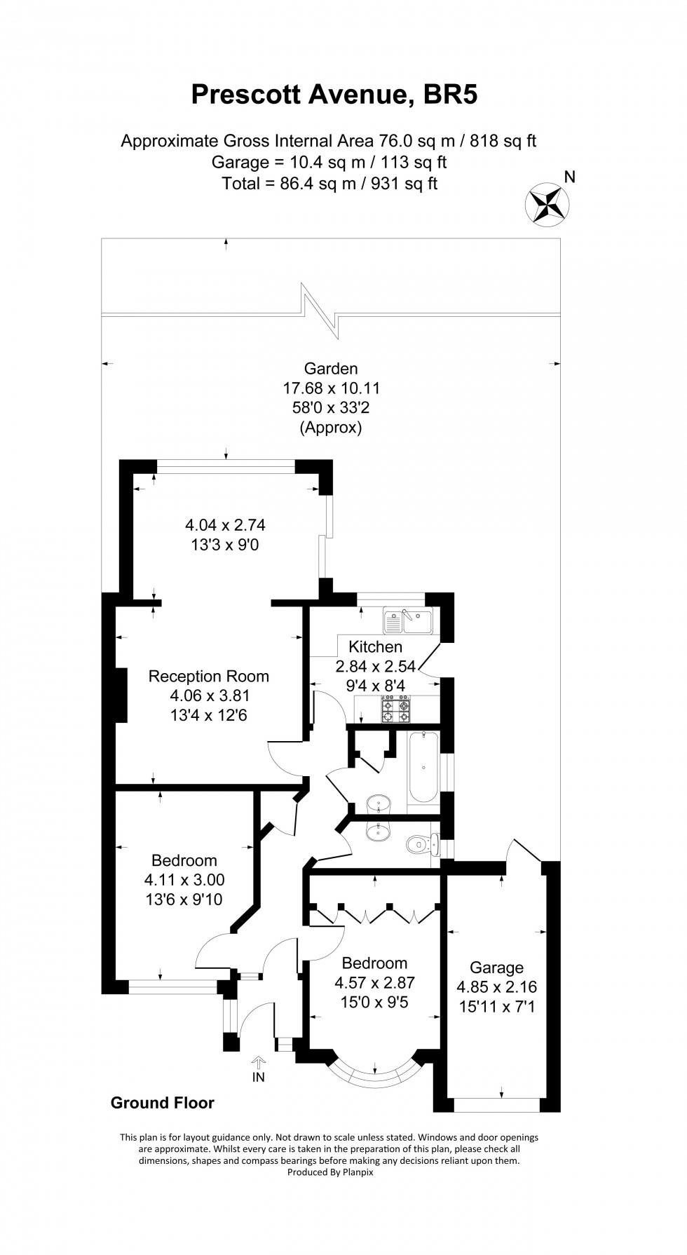
Prescott Avenue boasts two double bedrooms, a very large rear reception room with amazing views over the garden, a bathroom and separate kitchen.
Externally the property benefits from a stunning laid to lawn garden equipped with two storage sheds and a summer house perfect for enjoying a coffee on a warm summers day. To the front of the property you will find the driveway big enough for multiple cars and a garage.
Prescott Avenue is excellently located for all local amenities. It is just 0.6 miles from Petts Wood Station which offers fast transport into all major London Station. There are also a number of sought after local schools such as St James School (0.3 miles), Southborough School (0.3 miles), Crofton School (0.6 miles) and Bromley High School (0.8 miles).
Early viewing is recommended to avoid disappointment.