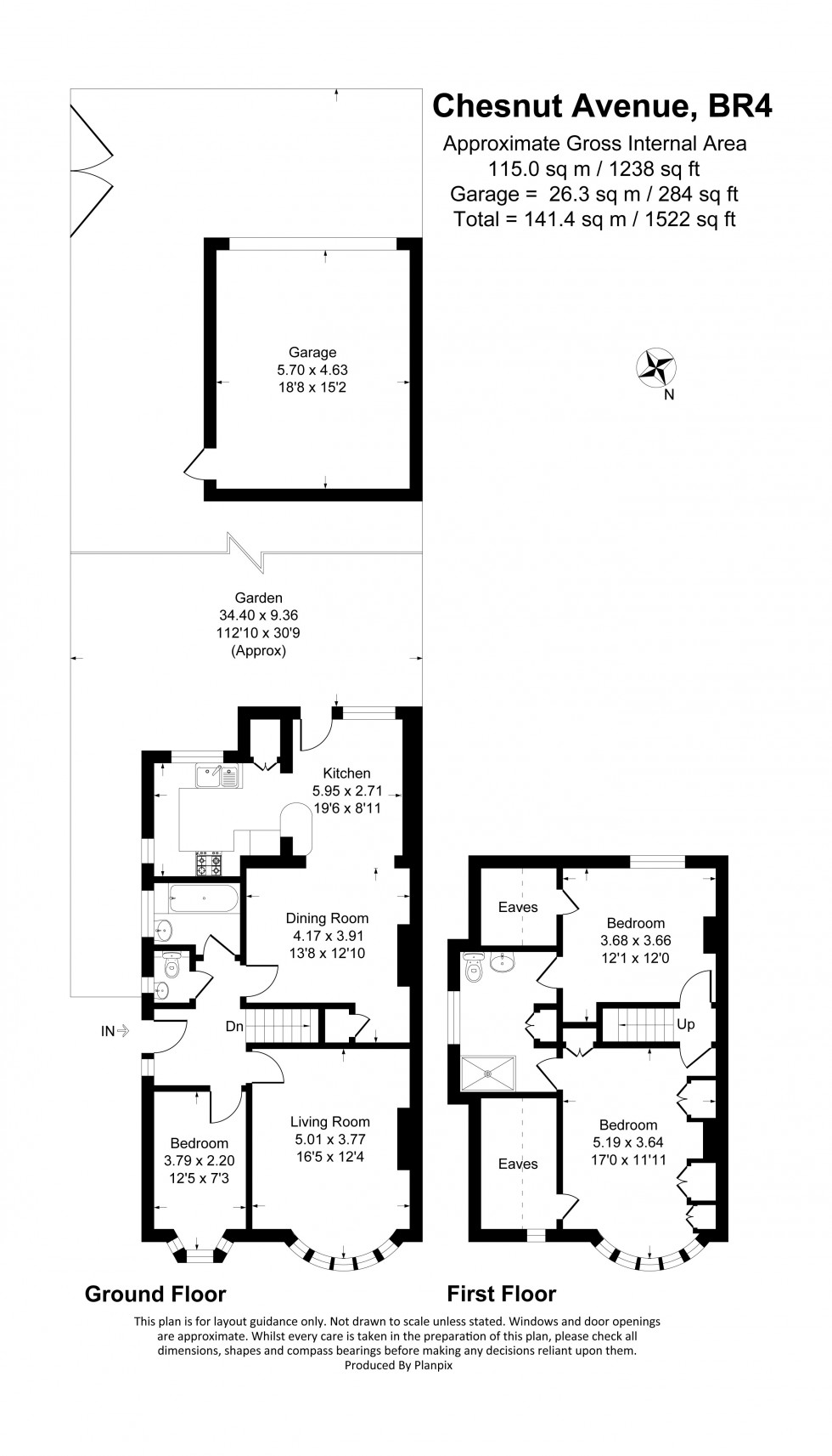
Three bedroom semi detached set on a large corner plot - fantastic location for primary and secondary school catchments - potential to extend STPP - modern shower room and family bathroom - well maintained gardens - walking distance to local Coney Parade and bus links - detached garage - EPC - D
West Wickham is a vibrant suburb absorbed into the London Borough of Bromley consisting of retail outlets, pubs, restaurants, several parks and primarily 1930s housing. There are four primary schools including Oak Lodge, Wickham Common, Pickhurst and Hawes Down, and two private schools; St David's College and Wickham Court. Secondary schools (Ravens Wood, Langley Boys, Langley Girls and Hayes) are in neighbouring Keston, Beckenham and Hayes.